Dortmund

ANFRAGESTOPP: 2 MFH im Paket mit rund 2.100 QM, 27 Garagen & um die 420.000 € Jahresmieteinnahmen

Attraktive Investitionsmöglichkeit in Dortmund – Neubau & kernsanierter Altbau

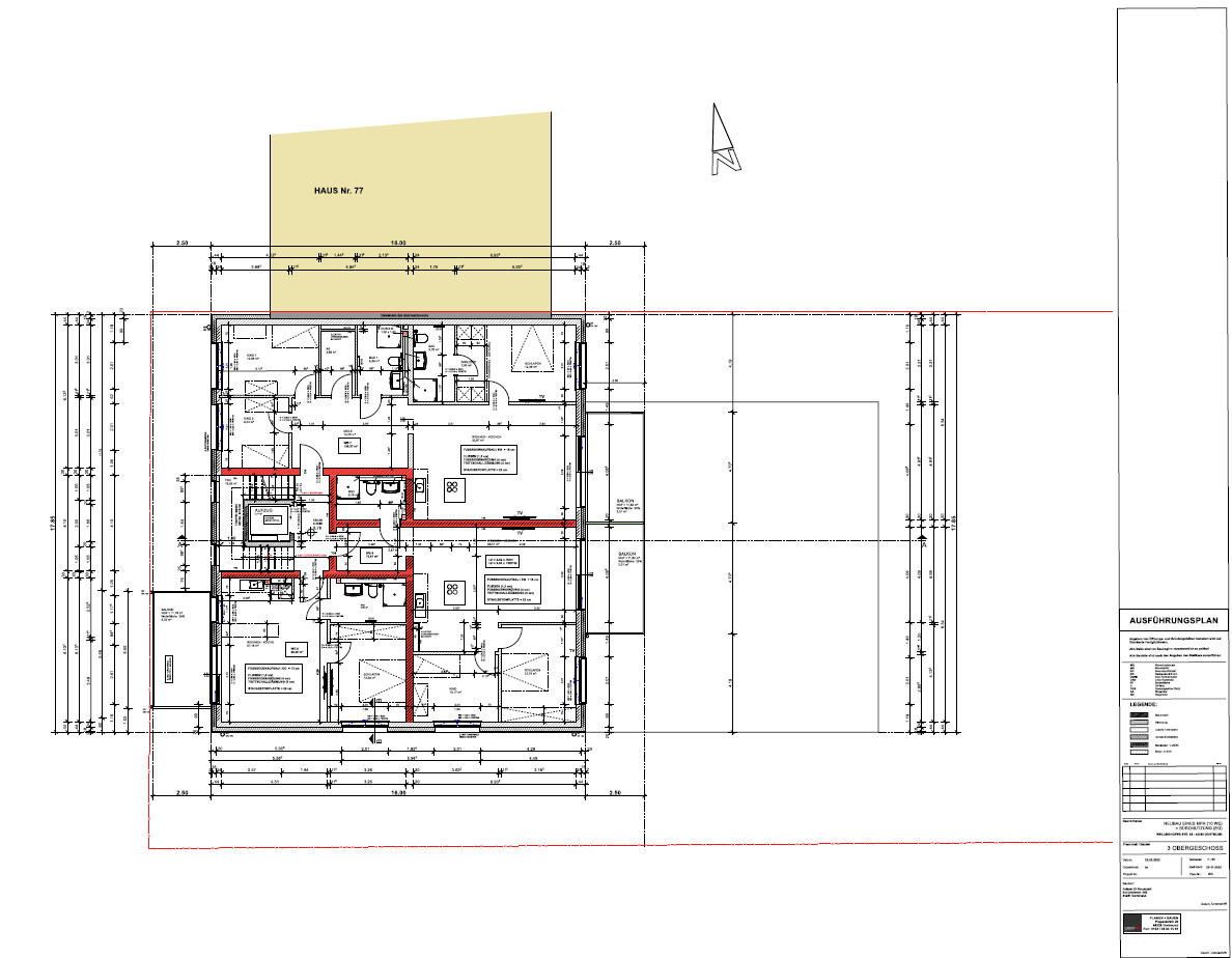
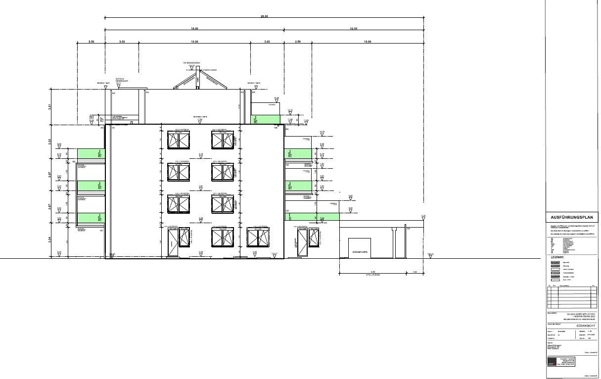
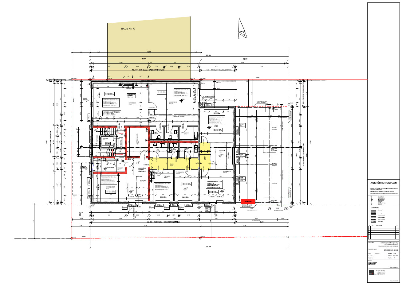
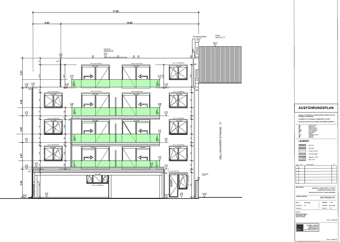
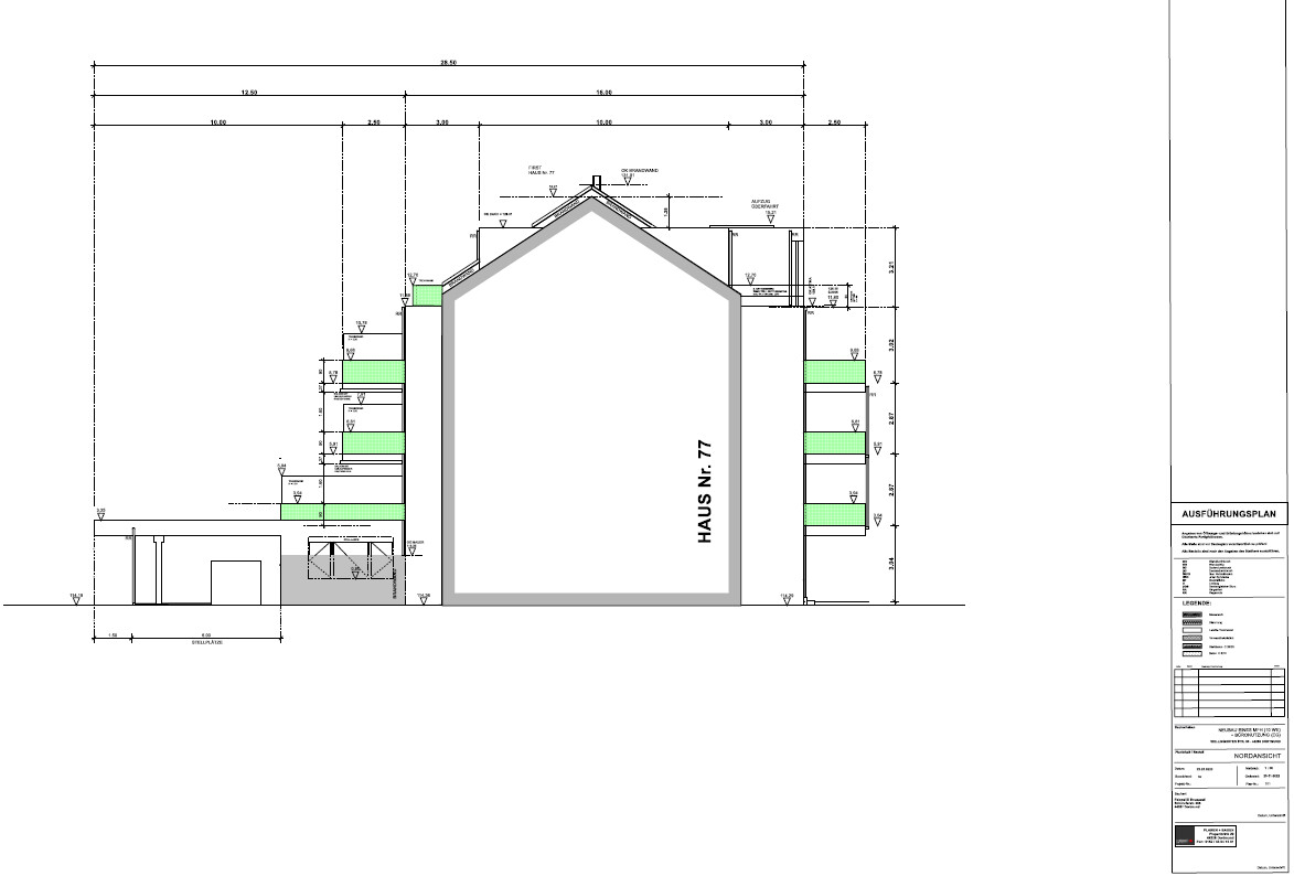
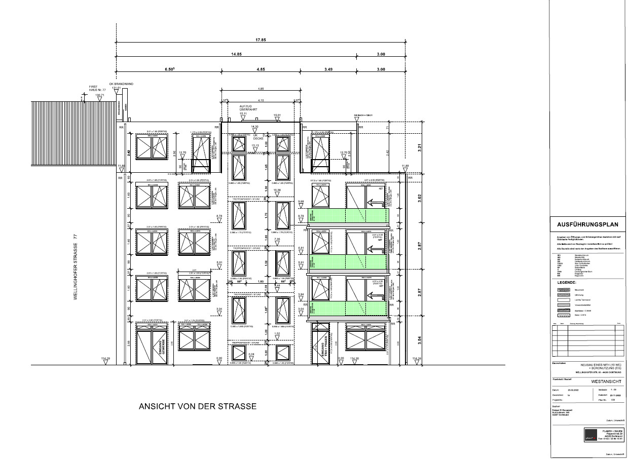
Kapitalanleger aufgepasst: In der Wellinghofer Straße 77 und 83 erwartet Sie ein Investment, das moderne Architektur und zeitlose Beständigkeit vereint. Auf einem großzügigen Grundstück von 2.692 m² bieten ein Neubau (Hausnr. 83, Baujahr 2024) mit 10 Wohneinheiten und 2 Gewerbeeinheiten sowie ein kernsanierter Altbau (Hausnr. 77, Sanierung 2024) mit 12 Wohneinheiten und 3 Gewerbeeinheiten zusammen rund 2.100 m² vermietbare Fläche.

Die Mieterstruktur ist ausgewogen: Mit einem Gewerbeanteil von unter 20 % liegt der Fokus klar auf Wohnraum – ein entscheidender Vorteil für langfristige Planungssicherheit und stabile Einnahmen. Ergänzt wird das Angebot durch insgesamt 27 Garagen, die als gefragte Stellplätze zusätzliche Mieterträge generieren.

Die zu erwartenden Jahreskaltmieten belaufen sich ab Juni 2025 auf ca. 420.000 €, inklusive Garagen und Gewerbeanteilen. Damit eröffnen die beiden Immobilien eine überdurchschnittlich attraktive Renditeperspektive in einem gefragten Dortmunder Standort.

Der Neubau überzeugt durch moderne Standards, energieeffiziente Bauweise und zeitgemäße Grundrisse. Der kernsanierte Altbau vereint charmante Architektur mit hochwertiger Ausstattung – ein Mix, der langfristig eine breite Zielgruppe von Mietern anspricht.

Für Investoren bieten die Objekte eine nachhaltige Kombination aus Wertbeständigkeit, hoher Mietnachfrage und attraktiven Einnahmen. Die zentrale Lage mit hervorragender Infrastruktur und Anbindung an den öffentlichen Nahverkehr macht die beiden Häuser zusätzlich zukunftssicher.

Fazit: Eine Kapitalanlage, die Tradition und Moderne verbindet und mit hohen Mieteinnahmen sowie einer erstklassigen Lage überzeugt. Sichern Sie sich dieses besondere Investment für Ihre Zukunft!

Balkon
Ja
Stellplatz
Ja
Ausstattung
Gehoben
Barrierefrei
Ja
Keller
Ja

Grunddaten

Ort
44263 Dortmund

Flächenaufstellung

Wohnfläche
ca. 2.100 m²
Nutzfläche
ca. 800 m²
Grundstücksfläche
ca. 2.650 m²
Anzahl Balkon / Terrasse
14
Anzahl Terrassen
2
Anzahl Stellplätze
37
vermietbare Fläche
ca. 2.100 m²
Anzahl Wohneinheiten
27

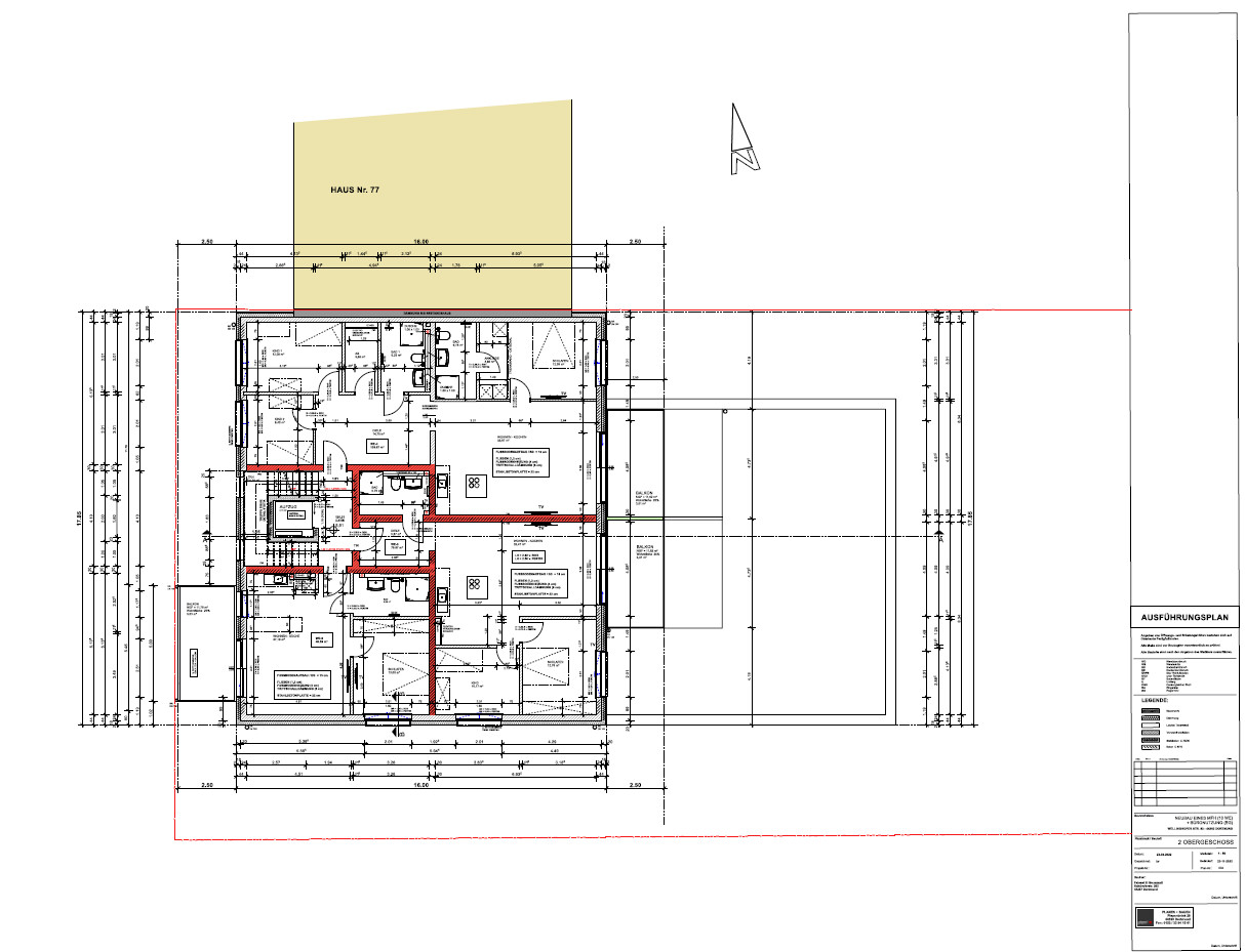
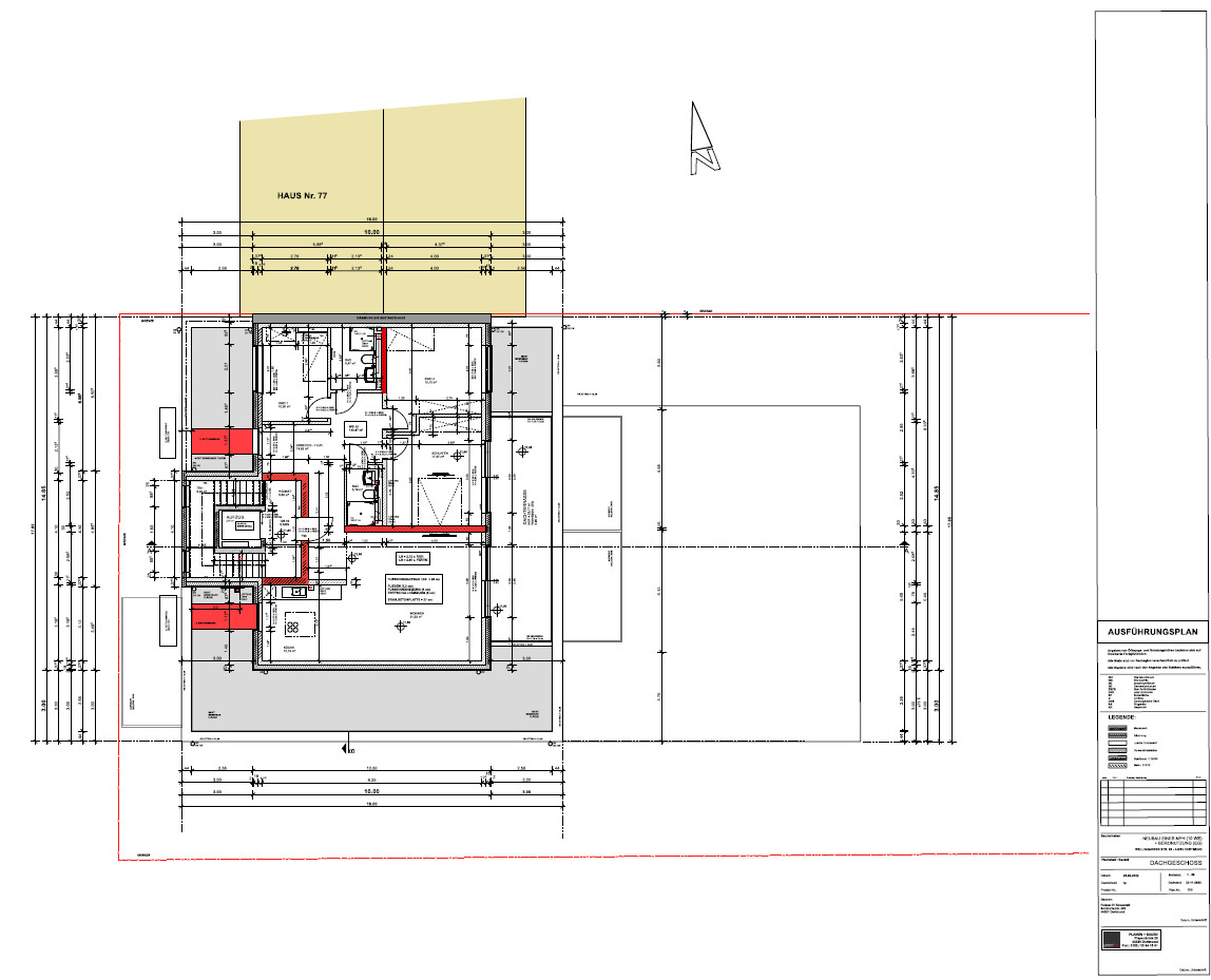
Raumangebot und Ausstattung

Verfügbar ab
01.11.2025
Vermietet
Ja
Gewerbliche Nutzung möglich
Ja
Baujahr
2024
Zustand
Gepflegt
Verkaufstatus
Verfügbar

Kaufpreis

Kaufpreis
6.500.000 €
Käuferprovision
4,00 %
X-fache
15.48
Mieteinnahmen (Ist)
420.000 € pro Jahr
Mieteinnahmen (Soll)
420.000 € pro Jahr

Ausstattung

Exklusive Ausstattung für zeitgemäßes Wohnen und Arbeiten

Die Immobilien überzeugen durch ein hochwertiges Wohnambiente und erfüllt alle Ansprüche an modernes Wohnen und Arbeiten. Bei vielen Wohnungen stehen Balkone zur Verfügung, während die großzügige Penthousewohnung mit einer eindrucksvollen Dachterrasse punktet.

Komfortabler Aufzug
Ein moderner Aufzug sorgt für barrierefreien Zugang zu allen Etagen. Ob junge Familien, Senioren oder Personen mit eingeschränkter Mobilität – hier profitieren alle Bewohner von Komfort, Sicherheit und Bequemlichkeit.

Stilvolle Bäder
Die Badezimmer sind wahre Wohlfühl-Oasen: Hochwertige Armaturen, stilvolle Fliesen und helle Räume mit Tageslichteinfall schaffen eine Atmosphäre zum Entspannen. Alle Bäder sind barrierefrei gestaltet und bieten durch bodengleiche Duschen, breite Türen und Haltegriffe höchste Funktionalität bei elegantem Design.

Edles Marmortreppenhaus
Das Treppenhaus besticht mit edlem Marmor und moderner Beleuchtung. Diese Kombination aus Ästhetik, Langlebigkeit und großzügiger Gestaltung unterstreicht den exklusiven Charakter der gesamten Immobilie.

Barrierefreiheit im Fokus
Die gesamte Ausstattung ist auf maximale Zugänglichkeit ausgerichtet. So genießen Bewohner ein hohes Maß an Selbstständigkeit, Sicherheit und Wohnkomfort – ein entscheidender Pluspunkt für langfristige Vermietbarkeit.

Fazit
Der Neubau und kernsanierte Altbau in Dortmund vereint modernes Design, durchdachte Funktionalität und eine hochwertige Ausstattung. Das Ergebnis ist ein stilvolles Wohnumfeld, das anspruchsvolle Mieter anspricht und Kapitalanlegern eine nachhaltige Investitionsmöglichkeit mit Zukunftsperspektive bietet.

Balkon
Ja
Stellplatz
Ja
Ausstattung
Gehoben
Barrierefrei
Ja
Keller
Ja

Lage

Das Anlageobjekt liegt im aufstrebenden Stadtteil Dortmund-Hörde, der durch eine gelungene Mischung aus urbanem Lebensstil und naturnaher Umgebung besticht.

Die Lage bietet eine ausgezeichnete Lebensqualität und eine attraktive Infrastruktur.

Verkehrsanbindung:
Dank der schnellen Erreichbarkeit der Autobahnen A40 und A45 ist die Anreise zu umliegenden Städten unkompliziert. Zudem sorgen die nahegelegenen Haltestellen des öffentlichen Nahverkehrs für eine schnelle Anbindung an die Dortmunder Innenstadt und andere Stadtteile.

Einkaufsmöglichkeiten und Dienstleistungen:
Die Umgebung bietet eine Vielzahl an Einkaufsmöglichkeiten, von großen Supermärkten bis hin zu kleinen Fachgeschäften. Die fußläufig erreichbare Fußgängerzone lädt zu einem entspannten Shoppingerlebnis ein. Zudem sind diverse Dienstleister, Banken, Apotheken und Restaurants in unmittelbarer Nähe vorhanden, was den Komfort für Bewohner und Besucher erhöht.

Freizeit und Erholung:
Dortmund-Hörde ist reich an Freizeitmöglichkeiten. Der Phoenix-See, ein beliebtes Naherholungsgebiet, lädt zu Aktivitäten wie Spaziergängen, Radfahren und Wassersport ein. Auch Parks und Grünflächen sind in der Nähe und bieten Raum zur Entspannung.

Bildungseinrichtungen:
Für Familien ist die Lage besonders attraktiv, da mehrere Schulen und Kindergärten in der Nähe sind. Dies gewährleistet eine gute schulische Ausbildung für Kinder und Jugendliche.

Umfeld und Nachbarschaft:
Das multikulturelle Viertel zeichnet sich durch eine freundliche Nachbarschaft und aktives Gemeinschaftsleben aus. Die Kombination aus modernen Neubauten und charmanten Altbauten verleiht dem Stadtteil einen einzigartigen Charakter.

Insgesamt bietet das Wohn- und Geschäftshaus in Dortmund-Hörde eine hervorragende Lage für Wohn- und Gewerbenutzungen. Die gute Erreichbarkeit, umfangreiche Infrastruktur und das attraktive Lebensumfeld machen diesen Standort besonders interessant für Investoren und zukünftige Bewohner.

Energie & Heizung

Baujahr laut Energieausweis2024
Energieausweisliegt vor
Energie­ausweistypBedarfsausweis
Gültig bis14.01.2034
PrimärenergieträgerLuftwärmepumpe
EnergieeffizienzklasseA+
Endenergiebedarf15,20 kWh/(m²·a)
EnergieträgerÖl

be the first to know about weather updates

Logo von Nobel & Company – Immobilienmakler Wesel, Oberhausen, Ratingen

Jetzt Termin vereinbaren

Bitte beachten Sie:

Das von Ihnen gewählte Datum und die Uhrzeit sind von Ihnen geäußerte Wunschdaten. Wir versuchen alles Ihnen diese zu ermöglichen. Nach erhalt Ihrer Nachricht wird sich Nobel & Company bei Ihnen telefonisch melden um einen finalen Termin abzustimmen.

Vielen Dank für Ihr Verständnis.

Marc Nobel

Immobilienexperte im Gespräch bei Nobel & Company – Beratung zu Immobilien in Wesel, Oberhausen und Ratingen